Your Home Page
Your Photos
Your Schedule
Contact Us

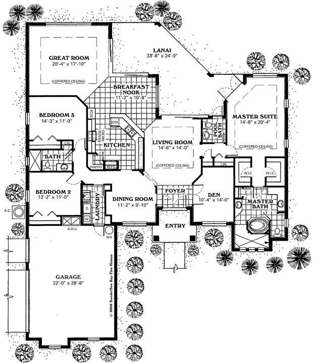
SanderSon Bay Fine Homes

Note: The floor plan shown below is the standard floor plan for The Panama Display Home. Your home may have customized variations to this standard plan.